



POH+W Architects design for this healthcare facility highlights flexibility, including a framework that adapts to the center’s current needs and leaves room for future accommodations. The secure building supports a variety of healthcare classifications.
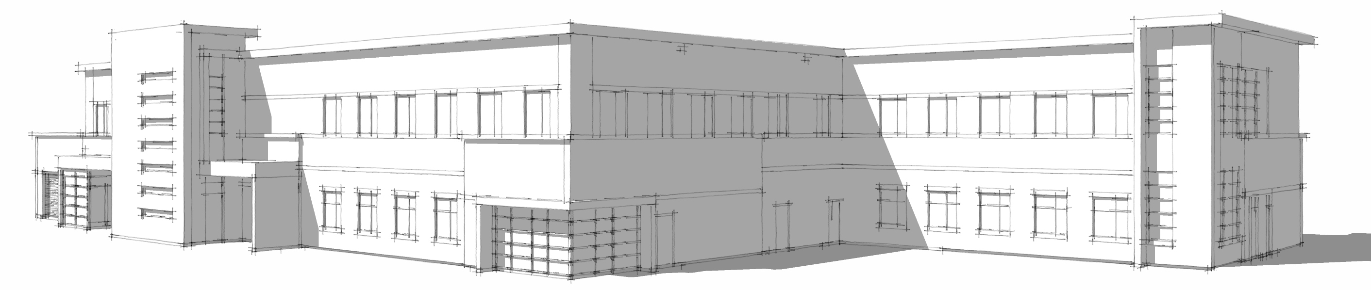
Concept Sketch:

The modern exterior symbolizes the forward-thinking approach to the mental health services. The 2-story facility allows for a significant amount of growth without requiring an addition. The nurses’ station anchors the dining area and patient room. The facility offers an assortment of services including psychiatric care, behavioral stabilization, and detoxification.
Concept Sketch:

Size
38,500-SF
Services
Architecture
Interior Design
Graphic Design
Project Features
Outpatient
Inpatient
Behavioral Health
Nurses station
Group treatment
Commercial kitchen
Dining room
Vehicular sallyport
Future growth
Durable, impact resistant walls
Award
CMAA Southeast Project Achievement Award for "Public Project Less than $10 Million"
BIA National Brick in Architecture Award
Bronze Award
Content Copyright, All Rights Reserved
POH+W Architects LTD